Back to results

Coemrcial Space/Dental Office for Sale, 7 Novembre Area

133 m2 SU
8
Floor Parter
Targu Mures , 7 Noiembrie , Mures
Sale Price:  420,000 €

Details

Disponibility
  • Imediat
Rooms
  • 8
Construction surface
  • 155m2
Floor
  • Parter
Construction year
  • 2014

Amenities

Land amenities
  • Water
  • Sewage
  • Electricity
  • Gas

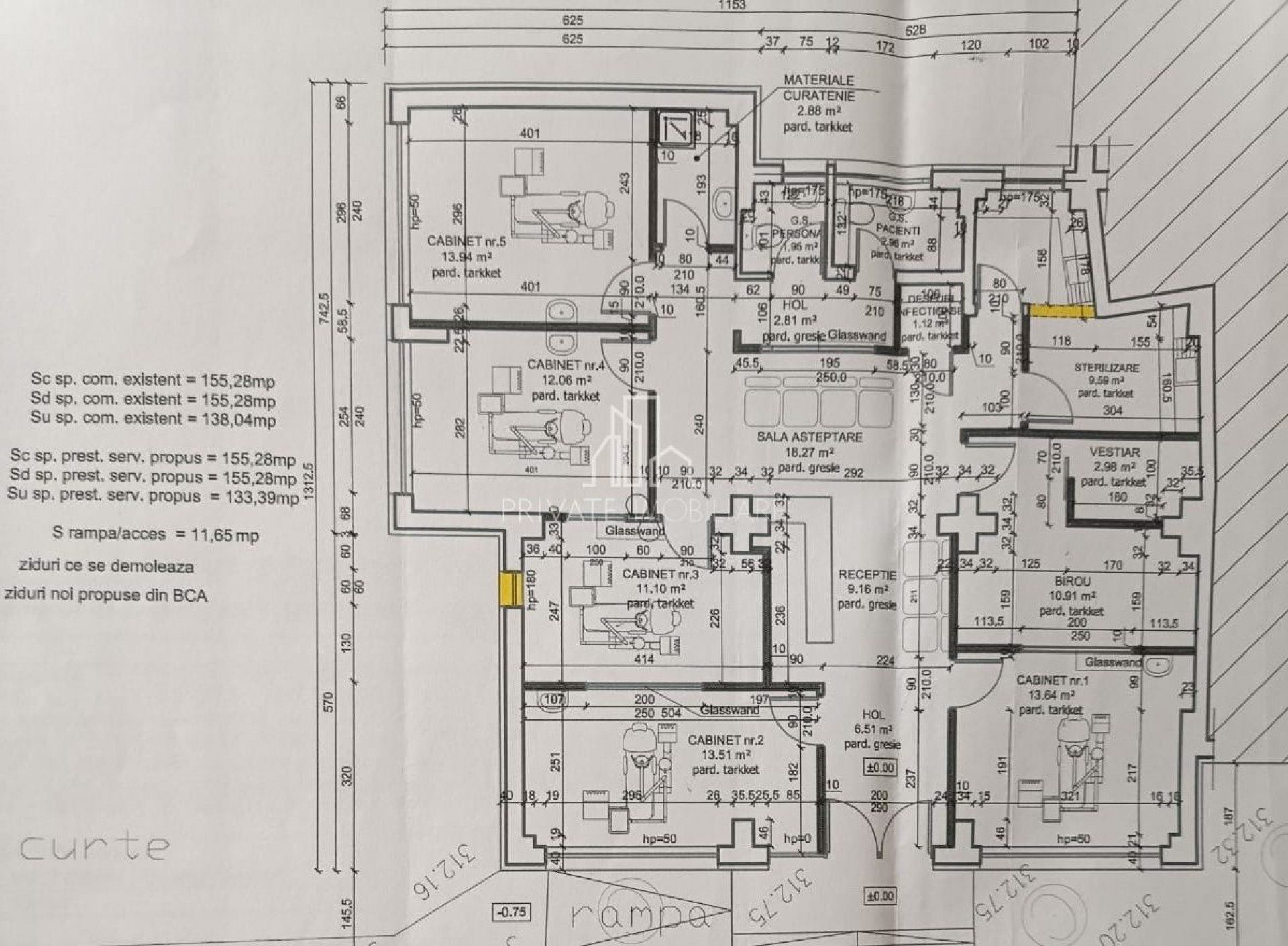
We offer for sale a commercial space, currently there is a dental office, recently arranged, all the equipment and equipment being of the latest generation.
It has a usable area of 133 Sqm and unfolded of 155 Sqm, it is located on the ground floor of a newly built block.

The office is arranged and equipped with 3 dental chairs, 1 chair (made in Germany) maca Sirona facial aesthetics, office, reception, locker room, waiting room, toilets, etc.

Those interested can purchase only the empty space at the price of 420,000 euros.
Those interested can purchase the space with all the facilities of the dental office at the price of 550 000 Euro.

For buyer customers, the commission is 0%.
The Private Real Estate Company has chosen the best and experienced partners in carrying out the transactions: notary, lawyer, real estate appraiser, issuer of Energy Certificates, real estate loan consultant, so that with the best real estate choice you will also receive the best services necessary throughout this process.
Giving our full interest in being of maximum help to our customers... It helps us achieve better results and subsequently enjoy customer referrals.
Do you think that this property does not fully meet your needs?
If you want to find the PERFECT PROPERTY for you and you don't have much time, ASK FOR THE HELP OF THE AGENT. It will offer you other ADVANTAGEOUS SOLUTIONS.
CONTACT US NOW, we have not failed with any customer!

Ovidiu Husar

Consultant Imobiliar

Email: ovidiu@privateimobiliare.ro

Tel: 0755 015 XXX

View Number

Related properties

properties of the month

properties of the month

SOCIAL MEDIA

Urmareste-ne pe retelele sociale pentru a afla mereu primul despre oferte noi, oportunitati, noutati, preturi si statistici din domeniul imobiliar.

Testimonials